5 (100%)
5
votes
Bản vẽ thép sàn 2 lớp có vai trò rất quan trọng so với những khu công trình kiến thiết xây dựng. Bản vẽ thép sàn cần những quy chuẩn nào để vận dụng thi công hiệu quả ? Những thông tin đáng chú ý quan tâm sau đây nhất định bạn sẽ cần trong quy trình xây đắp khu công trình của mình .
Tìm hiểu chung về thép sàn 2 lớp
Kết cấu thép sàn 2 lớp
Theo những kiến trúc sư, thép sàn được sắp xếp 2 lớp : lớp trên và lớp dưới. Lớp dưới chịu mô-men âm, lớp trên chịu mô-men dương .
Lớp dưới : thép lớp dưới là lớp thép chịu lực, được đặt theo phương song song cạnh ngắn ( chiều rộng ) .
Lớp trên : thép lớp trên là thép phân bổ, được đặt theo phương vuông góc với thép lớp dưới .
Đối với công trình thép sàn 2 lớp này, thì việc sử dụng loại vật liệu nào là vô cùng quan trọng. Thông thường, các chuyên gia khuyên dùng các loại thép có thương hiệu trên thị trường. Chính vì vậy, sự lựa chọn phù hợp cho bạn có thể là thép Việt Nhật và thép pomina

Khi nào sắp xếp thép sàn 2 lớp
Với thép lớp dưới, sau khi buộc xong sẽ kê “ cục kê ” dùng để bảo vệ cho sàn. Ở giữa hai lớp thép sàn sử dụng “ chân chó ” để tạo khoảng cách như giám sát .
Với thép lớp trên thì thép mũ chịu mô-men âm cắt tại 1/4 L ( cạnh ngắn ), thép có cấu trúc vuông góc với thép mũ và nằm dưới thép mũ .
Cách sắp xếp trên chỉ vận dụng với những khu công trình phong cách thiết kế nhỏ và vừa, nhà dân hay những khu công trình có kinh phí đầu tư không lớn, phải cắt thép nên tiến hành kiến thiết sẽ khó khăn vất vả hơn .
Để tiến hành thi công dễ dàng thông thường các kiến trúc sư sẽ bố trí thép sàn 2 lớp chạy song song, vừa không phải cắt thép vừa dễ kiểm tra khối lượng.
Xem thêm: Giống Chó Cổ Xưa Của Trung Quốc
Cách đan thép sàn 2 lớp
Việc đan sắt thép sàn lúc bấy giờ được thực thi khá chủ quan. Lí do là chủ nhà không nắm được trình độ thiết kế xây dựng, giám sát khu công trình thiếu hiệu suất cao. Cũng hoàn toàn có thể đơn vị chức năng kiến thiết thao tác không hết nghĩa vụ và trách nhiệm .
Cục kê
Cục kê là cục bê tông có tác dụng hỗ trợ cố định thép sàn đúng vị trí. Khi đổ bê tông đảm bảo chiều dày lớp bê tông bảo vệ cốt thép.
Kích thước cục kê trong công trình thông thường từ 15mm – 20mm – 25mm. Nhiều công trình không sử dụng cục kê chuẩn mà dùng đá kích thước 10x20mm để tiết kiệm chi phí. Tuy nhiên khi đổ bê tông tác động dẫm lên cốt thép sẽ khiến viên đá bị lệch khỏi vị trí kê. Hậu quả khiến cốt thép bị rơi xuống sát lớp cốt-pha, không còn lớp bê tông bảo vệ hay lớp bảo vệ rất mỏng.
Để kiểm tra việc sắp xếp thép sàn khu công trình của mình có đúng phong cách thiết kế hay không, gia chủ hoàn toàn có thể dựa vào tổng độ cao khối bê tông cần đổ. Với thép 1 lớp thì khối bê tông cần ở chính giữa, thép sàn 2 lớp thì chiều dày lớp trên và lớp dưới cần bằng nhau .
Số lượng cục kê :
– Với Sàn/dầm : 4 – 5 cục/m2
– Với Cột/đà : 5 – 6 cục/m2
Sắt kê mũ ( chân chó )
Sắt kê mũ là bộ phận tạo nên lớp bê tông bảo vệ của sắt mũ chụp theo phong cách thiết kế và tạo khoảng cách giữa lớp thép mũ phía trên và lớp thép sàn phía dưới .

Sắt kê mũ rất quan trọng nhưng nhiều gia chủ chủ quan không chăm sóc đến chi tiết cụ thể này. Với mặt sàn nhỏ thì hoàn toàn có thể không quan trọng lắm nhưng với mặt sàn có diện tích quy hoạnh lớn thì sẽ không tránh được những vết nứt tại những gối dầm .
Việc không sử dụng “ chân chó ” sẽ khiến khoảng cách giữa lớp thép mũ và lớp thép dưới sát vào nhau. Khi ta đi lại dẫm lên nhiều sẽ khiến sàn bị nứt, võng sàn giống như chiếc chảo .
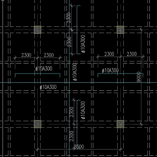
Bản vẽ thép sàn 2 lớp
Tùy theo diện tích mặt sàn mà kiến trúc sư sẽ thiết kế một cách phù hợp. Dưới đây là một số mẫu bản vẽ thép sàn 2 lớp để bạn tham khảo :


Trên đây là một số ít thông tin cơ bản về bản vẽ thép sàn 2 lớp, kỳ vọng hoàn toàn có thể phân phối cho bạn đọc những kỹ năng và kiến thức thiết yếu trong quy trình kiến thiết ngôi nhà của mình .
Source: https://thucanh.vn
Category: Chó cảnh
